Van Bleiswijkstraat 195, Den Haag

Description

ENGLISH TEXT BELOW***
Stijlvol wonen in het hart van het Statenkwartier - vrij, licht en royaal!

Aan één van de mooiste, rustigste locaties van het geliefde Statenkwartier ligt dit uitzonderlijk vrij gelegen, half-vrijstaand dubbel bovenhuis van circa 167 m².

Een woning met allure, om de hoek van de bruisende Frederik Hendriklaan – “de Fred” – met haar fijne traiteurs, boetiekjes en speciaalzaken, én op loopafstand van internationale organisaties en scholen. Een toplocatie pur sang.

Achter de klassieke gevel schuilt een charmant bovenhuis waarin vele originele details bewaard zijn gebleven: Ornamentenplafonds, glas-in-lood details, kamers-en-suite en open haarden geven de woning karakter en warmte.
Tegelijkertijd voldoet het huis volledig aan het comfort van nu.
Alles is met zorg en stijl uitgevoerd, zodat de nieuwe eigenaar alleen nog hoeft te genieten.

De woning beschikt over balkons aan zowel de voor- als achterzijde, met vrij uitzicht over de groene tuinen van de aangrenzende herenhuizen — een zeldzame oase van rust in de stad.

Indeling

Begane grond
Elegante entree met ruimte voor de trap en meterkast.

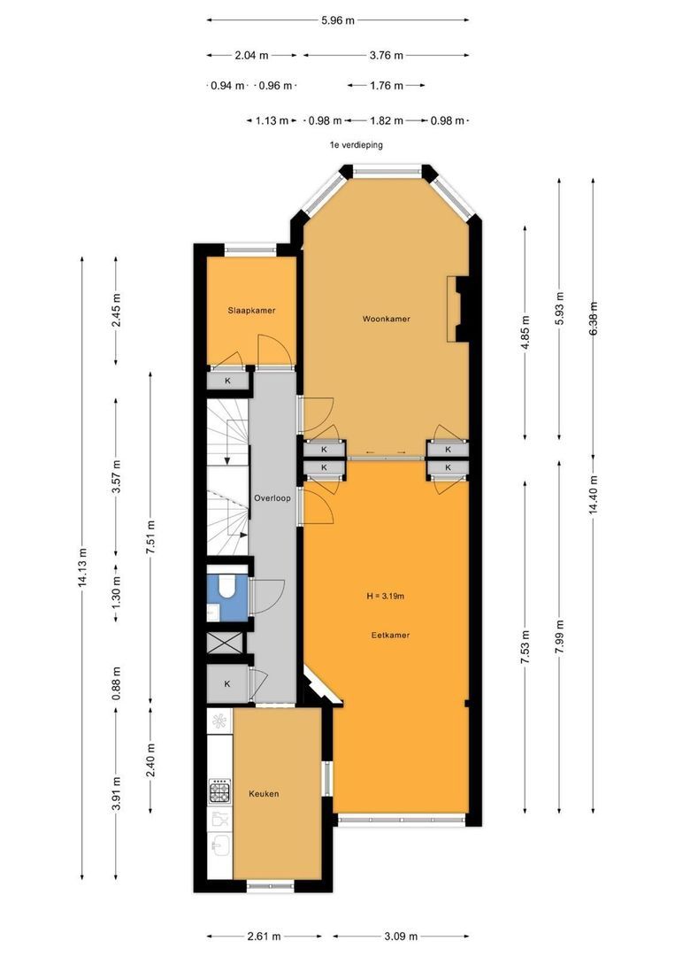
Eerste etage
Overloop met modern apart toilet. Aan de voorzijde een lichte zijkamer en een garderobekast.

De prachtige kamers-en-suite (ca. 14,5 meter lang!) zijn een echte blikvanger: een royale erker, hoge ornamenten plafonds (ca. 3.19 meter hoog!), twee open haarden, vaste kasten en een nieuwe visgraatvloer zorgen voor een bijzonder elegante leefruimte.

Aan de achterzijde bevindt zich de ruime keuken met hardstenen werkblad en inbouwapparatuur, waaronder vaatwasser, gaskookplaat, afzuigkap en koel-vriescombinatie.
Het doorgeefluik naar de woonkamer geeft de ruimte charme én functionaliteit.

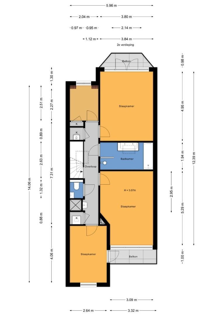
Tweede etage
Lichte overloop met wasruimte, berging/kast met cv ketel, origineel fonteintje en een separaat toilet.
Aan de voorzijde een zijkamer, momenteel in gebruik als werkkamer en een royale slaapkamer met openslaande deuren naar het balkon.

De luxe badkamer is voorzien van een heerlijk ligbad, een ruime inloopdouche en een badkamermeubel met dubbele wastafel.
Aan de achterzijde bevinden zich nog twee ruime slaapkamers, waarvan één met toegang tot het tweede balkon, de ander met prachtig vrij uitzicht.

Kenmerken
• Eigen grond
• Bouwjaar 1910
• Gelegen in Rijksbeschermd stadsgezicht Statenkwartier
• Half-vrijstaand karakter (aan één zijde vrij gelegen)
• 2/3 aandeel in actieve VvE
• Maandelijkse VvE-bijdrage € 240,00
• Collectieve opstalverzekering
• Cv-combiketel Remeha Avanta (2020)
• Schilderwerk buitenzijde (2022) en binnenzijde (2024)
• Nieuwe PVC vloeren (2022) met vloer- en wandisolatie (2022)
• Compleet vernieuwd leidingwerk (2020)
• Vernieuwde elektrische installatie (2020)
• Ouderdomsclausule van toepassing
• Oplevering in overleg

Bij verkoop geeft verkoper de voorkeur aan Notariskantoor Post in Den Haag.
Bent u enthousiast geworden? Dan nodigen wij u heel graag uit voor een bezichtiging!

***ENGLISH TEXT
Stylish living in the heart of the Statenkwartier – bright, spacious and serene!

Situated in one of the most beautiful and peaceful locations of the beloved Statenkwartier, you’ll find this exceptionally well-positioned semi-detached double upper house of approximately 167 m².

A home with true allure, just around the corner from the vibrant Frederik Hendriklaan – “de Fred” – known for its delightful delicatessens, boutiques and specialty shops, and within walking distance of international organisations and schools. A top location pur sang.

Behind the classic façade lies a charming upper home where many original details have been beautifully preserved: ornamental ceilings, stained-glass accents, ensuite rooms and fireplaces give the home its character and warmth.
At the same time, the house fully meets modern comfort requirements. Everything has been executed with great care and style, allowing the new owner to simply move in and enjoy.

The property features balconies at both the front and rear, offering unobstructed views over the green gardens of the neighbouring townhouses — a rare oasis of tranquillity in the city.

Layout

Ground floor
Elegant entrance with space for the staircase and meter cupboard.

First floor
Landing with a modern separate toilet. At the front, a bright side room and a cloakroom.

The stunning ensuite rooms (approx. 14.5 meters long!) are a true showpiece: a generous bay window, high ornamental ceilings (approx. 3.19 m!), two fireplaces, built-in cupboards and a new herringbone floor create an exceptionally elegant living space.

At the rear is the spacious kitchen with a hardstone countertop and built-in appliances, including a dishwasher, gas hob, extractor hood and fridge-freezer.
The serving hatch to the living room adds both charm and functionality.

Second floor
Bright landing with laundry area, storage/closet with central heating boiler, original small sink and a separate toilet.
At the front, a side room currently used as an office, and a large bedroom with French doors opening onto the balcony.

The luxurious bathroom features a lovely bathtub, a spacious walk-in shower and a vanity unit with double sinks.
At the rear are two additional spacious bedrooms, one with access to the second balcony and the other offering a beautiful open view.

Features

• Freehold property
• Built in 1910
• Located in the nationally protected cityscape of Statenkwartier
• Semi-detached (free on one side)
• 2/3 share in active owners’ association (VvE)
• Monthly VvE contribution € 240.00
• Collective building insurance
• Central heating boiler Remeha Avanta (2020)
• Exterior paintwork (2022) and interior paintwork (2024)
• New PVC floors (2022) with floor and wall insulation (2022)
• Completely renewed pipework (2020)
• Updated electrical installation (2020)
• Ageing clause applies
• Completion in consultation

In case of sale, the seller prefers Notariskantoor Post in The Hague for handling the transaction.
Have you become enthusiastic? Then we would be happy to invite you for a viewing!

Details

Transfer

Price
€ 850.000 k.k.
Homeowners association costs
€ 240
Status
Sold with conditions
Acceptance
In consultation
Address
Van Bleiswijkstraat 195
Zipcode
2582 LD
City
Den Haag

Build

Apartment type
Upper floor apartment, Double upstairs house
Build type
Existing
Build year
1910
Maintenance inside
Excellent
Maintenance outside
Excellent

Surface and volume

Living surface
ca. 167m²
Volume
ca. 639m³

Layout

Rooms
7
Bedrooms
4
Bathrooms
1
Number of floors
2

Energy

Energy label
C
Hot water
Central heating
Heating
Central heating
Furnace
Remeha Avanta (2020, Combined furnace, Owned)

Garage

Location

10 min
20 min
30 min
Bereken bereik
Filters

Bereken je bereik

Kies je vervoer
Maximale reistijd
10 min.
20 min.
30 min.
Toon resultaten

Filters

Geef hieronder aan welke voorzieningen u op de kaart wilt tonen.

Kies voorzieningen
School
Dokter
Apotheek
Restaurant
Sportschool
Bus
Supermarkt
Ziekenhuis
Metro
Tandarts
Bioscoop
Trein
Toon resultaten

Related houses

Sold
slaapkamers7 kamers
oppervlakte167m²
price€ 850.000 k.k.
slaapkamers7 kamers
oppervlakte167m²
price€ 850.000 k.k.

ARE YOU INTERESTED?

Please contact us. We are happy to provide more information about plans viewing.

The form has successfully been sent. We wil contact you as soon as possible.

Something went wrong while sending the contact form. Check if you correctly filled in all required fields and try again.

recaptcha
reCAPTCHA
PrivacyTerms