Pieter de Voisstraat 16, Den Haag

Description

Bright and Modern 4-Bedroom Semi-Attached Family House in Popular Child-Friendly Neighborhood Zuid Waldeck

Located in the popular and child-friendly neighborhood of Zuid Waldeck, this bright and modern semi-attached family house offers an ideal living space with 4 bedrooms. The house is conveniently situated near shops, parks, the beach of Kijkduin, and public transport. The International School of The Hague is just a 5-minute bike ride away.

The layout is as follows:

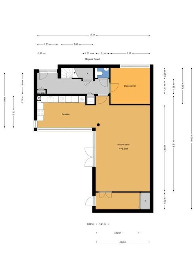
Ground Floor:
Entrance hall with meter cupboard and toilet with fountain, Spacious living room with access to a sunny back and side yard with a stone shed
Semi-open kitchen with built-in appliances: fridge, freezer, oven, 4-burner gas hob, combi-oven microwave, dishwasher, and extractor hood
Bedroom/guest room at the back
First Floor:

Landing
Bedroom 2 with access to a roof terrace
Bathroom with bath, separate shower, and double washbasin
Separate toilet
Bedroom 3 at the back
Bedroom 4 at the front
The house is heated and cooled by a geothermal heat pump, eliminating the need for gas for floor heating and hot water.

Special features:
- 138 m²
- Partly furnished
- Energy label A
- Available immediately
- €2.850,00 per month excluding utilities
- Maximum of 2 years

Details

Transfer

Price
€ 3.200 p.m. ex.
Decoration
Partly furnished
Status
Available
Acceptance
Directly
Address
Pieter de Voisstraat 16
Zipcode
2551 JA
City
Den Haag

Build

House type
Single family, Half detached house
Build type
Existing
Build year
2007
Maintenance inside
Good
Maintenance outside
Good

Surface and volume

Living surface
ca. 138m²
Volume
ca. 710m³

Layout

Rooms
5
Bedrooms
4
Bathrooms
1
Number of floors
2

Energy

Energy label
A
Heating
Heat pump

Exterior areas

Garden
Backyard, Side garden
Shed
Free standing, stone

Garage

Garage type
Parking spot

Location

10 min
20 min
30 min
Bereken bereik
Filters

Bereken je bereik

Kies je vervoer
Maximale reistijd
10 min.
20 min.
30 min.
Toon resultaten

Filters

Geef hieronder aan welke voorzieningen u op de kaart wilt tonen.

Kies voorzieningen
School
Dokter
Apotheek
Restaurant
Sportschool
Bus
Supermarkt
Ziekenhuis
Metro
Tandarts
Bioscoop
Trein
Toon resultaten

Related houses

Rented
slaapkamers5 kamers
oppervlakte138m²
price€ 3.200 p.m. ex.
Rented
slaapkamers5 kamers
oppervlakte138m²
price€ 3.200 p.m. ex.
Rented
slaapkamers5 kamers
oppervlakte138m²
price€ 3.200 p.m. ex.
Rented
slaapkamers5 kamers
oppervlakte138m²
price€ 3.200 p.m. ex.

ARE YOU INTERESTED?

Please contact us. We are happy to provide more information about plans viewing.

The form has successfully been sent. We wil contact you as soon as possible.

Something went wrong while sending the contact form. Check if you correctly filled in all required fields and try again.

recaptcha
reCAPTCHA
PrivacyTerms